Charming elegant design.
Key features
Exclusive development built to the highest standards
3100 sqft / GIA including garage / car-port
5 no. spacious bedrooms and 3 bathrooms
Including a master bedroom suite with dressing room and en suite bathroom
Expansive kitchen/dining/family room with doors to garden
Large drawing room with French doors to garden
Convenient games/play room off the kitchen
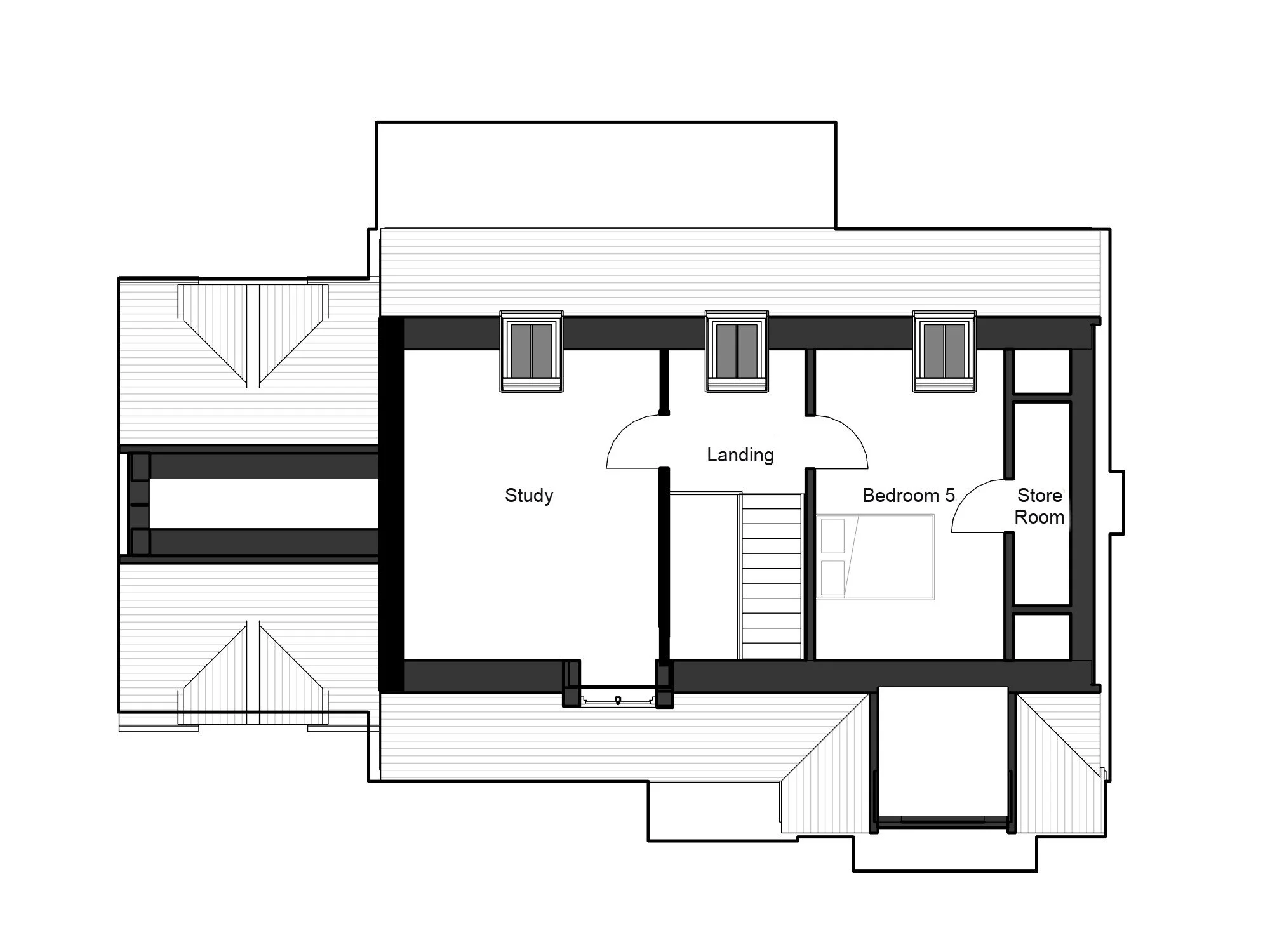
Excellent study with far reaching views
Laundry/boot room with laundry chute and outside access
Excellent energy performance standards and technical specifications
-

Ground floor
Kitchen / Dining Room - 4m x 4.8m (13’1’’ x 15’7’’) - 6.3m x 4.5m (20’7’’ x 14’8’’)
Drawing Room - 8.5m x 4m (27’9’’ x 13’1’’)
Games Room - 3.8m x 2.8m (12’5’’ x 9’2’’)
Laundry Room - 3.8m x 2.8m (12’5’’ x 9’2’’)
-

First floor
Bedroom 1 - 4m x 3.4m (13’1’’ x 11’2’’)
Bedroom 2 - 3.2m x 3.2m (10’5’’ x 10’5’’)
Master Bedroom - 4.2m x 4m (13’8’’ x 13’1’’)
Bedroom 4 - 4m x 3.1m (13’1’’ x 10’2’’)
-

Second floor
Bedroom 5 - 4m x 2.9m (13’1’’ x 9’5’’)
Study - 4m x 4m (13’1’’ x 13’1’’)